Louer appartement 2 pièces de 48 m²

Carquefou (44)
659 € CC/mois
réf. GES12180042-724
 8 photos  ajouter
Exclusivité

Présentation

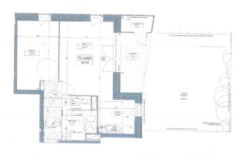
CARQUEFOU - LA FLEURIAYE - LOI PINEL - Appartement T2 de 48,39m² - CARQUEFOU - LA FLEURIAYE - LOI PINEL. Proche du bourg et des commerces. Situé au rez de chaussée de cette résidence récente avec ascenseur, cet appartement de Type 2 de 48,39 m² vous offre, une entrée, un séjour avec coin kitchenette équipée (plaques de cuisson et réfrigérateur) le tout donnant sur une terrasse avec débarras et jardinet privatif de 38,51 m², une chambre, une salle d'eau, et un WC séparé. Place de parking en sous-sol. Le bien est soumis au statut de la copropriété , la copropriété comporte 2 lots.

Loyer de 659,00 euros par mois charges comprises dont 80,00 euros par mois de provision pour charges (soumis à la régularisation annuelle).
Les honoraires charge locataire sont de 558,00 euros ( soit 11,53 euros/m² ) dont 146,62 euros pour état des lieux ( soit 3,03 euros/m² ).
Montant estimé des dépenses annuelles d'énergie pour un usage standard : entre 240 et 370 euros. Prix moyens des énergies indexés en 2021.

Informations complémentaires

Type T2
Etage -
Année 2016
Chauffage Gaz, Collectif, Radiateur
Loyer 659 € CC/mois
Honoraires 558 €
Nombre de chambres 1
Nombre de pièces 2
Salle(s) de bain 1
Surface habitable 48 m²
Surface séjour 18 m²
Surface terrain -
logement très performant logement extrêmement consommateur d'énergie kWh/m² par an consommation (énergie primaire) kgCO₂/m² par an emissions DPE_ DPE_
kg CO₂/m² par an A B C D E F G émissions de CO₂ très importantes peu d'émissions de CO₂ * Dont émissions de gaz à effet de serre

 

Localisation du bien

 

Demande d'informations

Lefeuvre Immobilier Nantes Sigma 2000

Location  |  Gestion

Sigma 2000 - 7ème Étage
5 bd Vincent Gâche - CS 16327
44263 - Nantes Cedex 2

Service Gestion Locative : 02 46 88 00 39
Service Location : 02 51 72 94 76

Horaires d'ouverture :Du lundi au jeudi de 8h45 à 12h30 et de 13h30 à 17h30.
Le vendredi de 8h45 à 12h00 et de 13h30 à 17h00.

Fiche de l'agence  Localiser

En soumettant ce formulaire, j'ai bien pris connaissance que les informations saisies seront exploitées dans le cadre de la gestion de ma demande.
Pour en savoir plus, consultez notre Mention d'information sur le traitement des données personnelles Mention d'information sur le traitement des données personnelles.

 

Biens pouvant vous intéresser

Menu