Louer appartement 3 pièces de 60 m²
Présentation
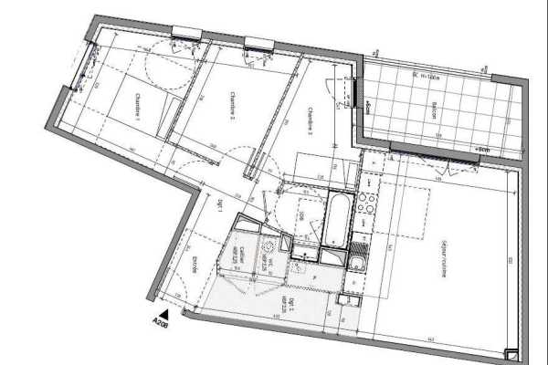
A LOUER - NANTES Gare Sud - Appartement 3 pièces MEUBLE de 60 m² - Au cœur de ce nouveau quartier à deux pas des commerces et des transports, bel appartement de 3 pièces MEUBLE de 60 m². Situé au 13ème étage de cette résidence avec ascenseur, il se compose d'un séjour avec cuisine ouverte aménagée et équipée (plaques de cuisson, hotte, four, réfrigérateur, lave vaisselle et micro-ondes) le tout donnant sur un balcon de 26.30 m² exposé sud/ouest avec vue dégagée, 2 chambres ayant accès au balcon, une salle de bains et WC séparés. Une place de parking en sous-sol sécurisé.
Chauffage et eau chaude : COLLECTIF.
Charges comprises : entretien des parties communes, eau chaude, chauffage et eau froide.
Classe énergétique : B
Logement Eligible à VISALE
Vous avez entre 18 et 30 ans ou si vous être salariés de + de 30 ans
Testez votre éligibilité sur le site de https://www.visale.fr/
Agent de location : Sarah BRISSON - 06.07.22.79.75. Le bien est soumis au statut de la copropriété.
Loyer de 1 037,65 euros par mois charges comprises dont 100,00 euros par mois de provision pour charges (soumis à la régularisation annuelle).
Les honoraires charge locataire sont de 787,00 euros ( soit 13,12 euros/m² ) dont 181,80 euros pour état des lieux ( soit 3,03 euros/m² ).
Montant estimé des dépenses annuelles d'énergie pour un usage standard : entre 330 et 490 euros. Prix moyens des énergies indexés en 2023.
Informations complémentaires
Informations non contractuelles ne pouvant engager la société.
Surfaces approximatives non vérifiées.
Localisation du bien
Demande d'informations
Lefeuvre Immobilier Nantes Sigma 2000
Location | Gestion
Sigma 2000 - 7ème Étage
5 bd Vincent Gâche - CS 16327
44263 - Nantes Cedex 2
Service Gestion Locative : 02 46 88 00 39
Service Location : 02 51 72 94 76
Horaires d'ouverture :Du lundi au jeudi de 8h45 à 12h30 et de 13h30 à 17h30.
Le vendredi de 8h45 à 12h00 et de 13h30 à 17h00.


